keyboard_backspace一覧へ戻る
中古マンションザ・福井タワースカイレジデンス 1808号室
物件価格:32,000,000円
【オーナーチェンジ物件】
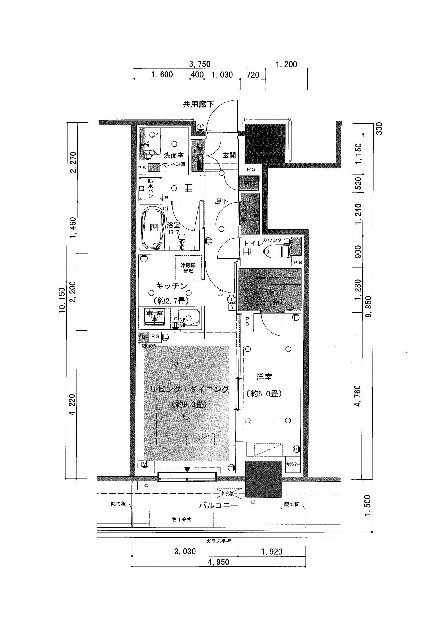
間取り:1LDK
福井駅まで徒歩5分!
各種公共交通機関へのアクセス良好
通勤・通学、お買い物に便利です
人気の明道中学校区です
バルコニーからは福井の街並みが一望できます
リビングダイニングには、床暖房設備つき
基本情報
| 物件分類 | 中古マンション |
|---|---|
| 物件価格 | 32,000,000円 |
| 管理費 | 16,800円 |
| 修繕積立金 | 6,440円 |
| 所在地 | 福井市中央1丁目3-7 |
| 小学校区 | 順化小学校 |
| 中学校区 | 明道中学校 |
| 現況 | 賃貸中 |
建物/設備情報
| 築年月 | 2024/05 |
|---|---|
| 構造 | 鉄筋コンクリート造 |
| 屋根(構造) | 陸屋根 |
| 階建 | 28階建 |
| 総戸数 | 118戸 |
| 建物面積 | 45.9㎡ (13.88坪) |
| 階部分 | 18階 |
| 間取り | 1LDK |
| バルコニー | 東向き |
| 駐車場 | なし |
| キッチン | ガス |
| 排水 | 公共下水道 |
| 給湯 | ガス |
| 特記 | 床暖房設備あり |
土地情報
| 権利 | 所有権 |
|---|---|
| 都市計画 | 市街化区域 |
| 用途地域 | 商業地域 |
| 建ぺい率 | 80% |
| 容積率 | 600% |
その他
| 接道区分 | 一方道路 |
|---|---|
| 交通機関 | 福井駅まで徒歩5分 |
| 引渡日 | 相談 |
| 法令制限 | 景観法 |
| 取引態様 | 媒介 |
| 管理番号 | 40625TY |
アクセス
所在地:福井市中央1丁目3-7
※上記MAP上でのマーカーの位置が実際より少しずれている場合があります。
※物件掲載内容と現況に相違がある場合は現況を優先と致します。
この物件をお問い合わせ
お電話でも承っております。お気軽にご連絡下さい。
定休日 毎週日曜・祝日
0776-23-2300
受付時間 平日9:30〜17:30/土曜9:30〜15:30定休日 毎週日曜・祝日

